- 2019-07-24 11:06:41 | 访问量:2183
60m2布局大改造,看起来像100m2!
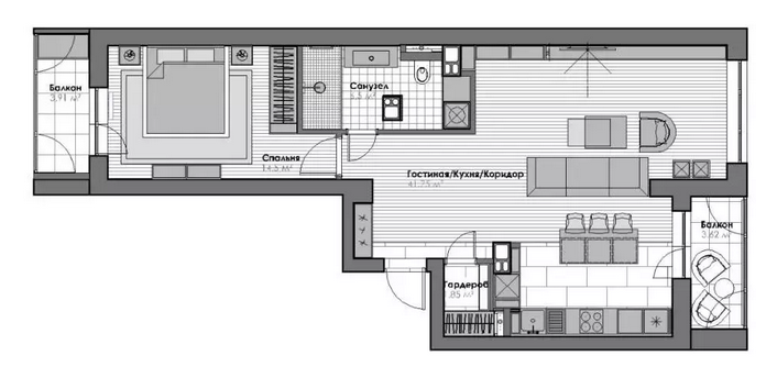
L型的房子,功能间的布局最是紧要了,很多人会忽略卫生间的设计,其实影响整体空间的利用,恰巧就是这种小空间!

夫妻俩对玄关的要求就是一定得宽敞
除了必要的收纳柜之外
全身镜也是少不了的
还有有照射灯,保证光源足够亮
玄关的左侧墙是卫生间的外墙
被刷上了一层黑漆
墙面上用一幅纯白版画装饰
零星的点缀倒还有几分艺术感

在外墙的另一边
则被设计成了书橱的模样
可书柜的空间并不大
周围大量的留白难道是为了这两株植物吗?
客厅的陈设看似随心而欲
实则但在每一个节点上
都充满了对细节和设计的追求
配色和软装都异常的精致

客厅后边是开放式厨房和餐厅
一小面墙作为隔断,更加的有层次感
沙发的色彩其实并不沉闷
更多的是一种简约精致的质感
夫妻俩有点执着于空间的整体性
所以卫生间表皮外的书架
与客厅中的茶几、沙发
融合的非常好,过渡的十分自然
从餐厅的角度看向电视
浅灰色的电视柜和背景墙
完美的融合了,整体性很棒

紧凑而有序,
简约而不简单
这便是小编对客厅最深刻的印象了
厨房,繁琐物件最多的地方
在夫妻俩的设计下,一切迎刃而解
靠墙边设计,可以说是最适合的方法了
L型的厨房布局设计
将必备的电器与灶台区完全分离
让家中的行走动线更为优化

入墙式的壁柜
与一旁的冰箱,合二为一
烤箱和碗具,则放上拐角处的橱柜中
餐桌也能作为一个收纳柜
主卧中靠墙的大衣柜
实际上也是个一物两用的设计
侧面摆放装饰物品,
正面存放衣物
户型小,卧室的面积也小
所以用隔板来增加置物
增加了更多的储物空间
留给卧室的活动区域就变得更多了
化妆桌搭靠在置物柜的一侧
并且在墙角的地方
还放置了一块玻璃长镜

看一下这个加宽后的床头板
它的内部隐藏了一个超大的储物柜
而且在其内部还增加了一条灯带
整个墙面变得更加明亮了
在阳台窗户边安装一个置物架
再摆放些许的瓶瓶罐罐
种上一点绿色小青菜
阳台也能活出小菜园的滋润

干湿分离设计的卫生间
斑驳的瓷砖也是一大特色
厚重的大理石洗漱台面,有很质感
空间的整体感觉十分精致简约
储物有序的入墙式壁柜
以原始的隔断墙
将其与洗浴间的湿气隔开
设计得层次分明,功能齐全


中国匠心品牌福晶板材,好板材,福晶造!
7*24小时服务热线:400-886-0276
福晶板材官网:http://www.fjwood.cn
- 上一篇:家装空间如何合理设计收纳柜
- 下一篇:关于甲醛,需要知道的几个问题
- 闻木香自来-领取木头小样
- 2024-08-21
闻木香自来-领取木头小样
- 福晶香杉板 · 板香飘万家
- 2024-03-06
福晶香杉板 · 板香飘万家 甄选雪峰山香杉木,每张板都带有淡淡的木头香味。 福晶香杉板是一种独具创意的木材艺术品它不仅仅是一块板材更是一种生活方式的象征每一块福晶香杉板都蕴含着大自然的力量和人类的智慧它们的结合创造出了一种独特的生态板材++选料天然是我们天生的信仰++原料篇福晶香杉板以天然香杉木为原料经过现代高科技的精心加工保留了木材的天然纹理和质感每一块板材都经过多道工艺的精细打磨使其更加平整、
- 喜讯!福晶板材荣获“金谱奖”——板材行业消费者信赖品牌
- 2023-11-21
- 双重呵护“净”在福晶
- 2022-11-15
福晶32项工序制作流程 连续6年产品抽检合格 # 雪峰山香杉木 # 拥有先进生产设备70台,年生产量80余万张 其“福晶”牌系列产品,以其平整度好,翘曲可能性小,甲醛释放量低,内在质量优(芯板使用纯湘杉),被评为湖南省,产品荣获湖南省产品称号,属省林产品加工龙头企业。 主要经营项目涵盖:细木工板、生态板、指接板、装饰面板、胶合板、石膏板、木线、白乳胶、胶、玻璃软片、装饰五金等系列产品。 产
- 跨入ENF级时代
- 2022-11-15
福晶板材真正做到生产无添加 让中国家居环境更美好! ENF环保标准 全球最严苛环保标准!没有之一!几乎无醛性质! 随着社会的不断发展,人们对环保意识的不断加强许多家庭在选购板材的时候,最注重的就是环保。 大多数的消费者能够认识到的无非是:E1、E0 国外的环保标准无非为:NAF CARB标准、F4星标准 对于以上的可谓是:以前环保的最高标准! ---------------------------
- 喜讯︱福晶板材荣获“湖南省知名品牌”称号
- 2022-08-12
喜讯︱福晶板材荣获“湖南省知名品牌”称号 2022第十六届中国品牌节正式拉开帷幕 ·点燃火辣长沙·中国品牌星耀全城· 2022第十六届中国品牌节年会于8月8日在长沙北辰国际会议中心正式拉开帷幕。以“开发与奋进”为主题的很好的契合了国家当前的发展形势,也明确了作为中国品牌应该承担的责任与使命。 此届中国品牌节年会由品牌联盟、中国会展经济研究会联合主办,长沙市人民政府、湖南省工商业联合会、湖南省体育局


400-886-0276







